Haar-9-Süd

SANIERUNG EFH IN MÜNCHEN-HAAR

Haar-7-Ost
Ostfassade
Haar-8-Nord
Nordfassade
Haar-6
Querschnitt
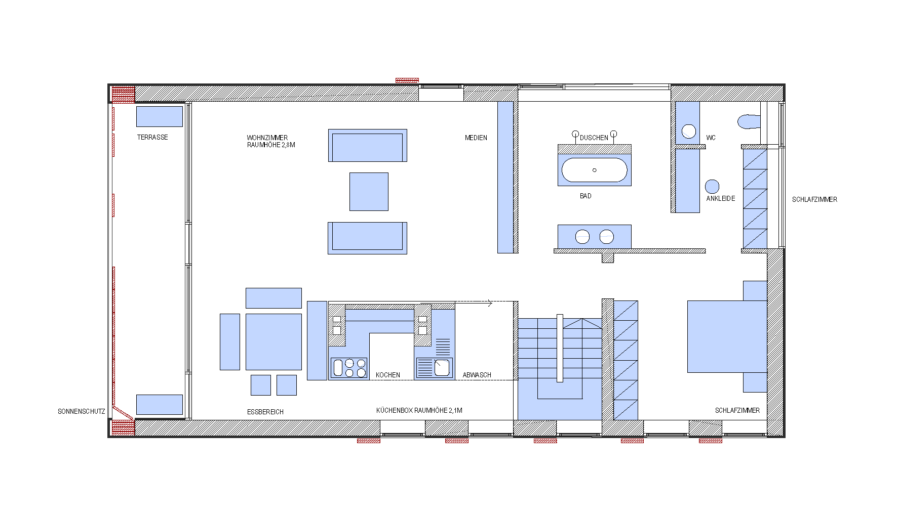
Haar-5
Grundriss Obergeschoss
Haar-9-Süd
Südfassade

PROJEKTBESCHREIBUNG

Umbau eines Einfamilienhauses in München Haar unter Beibehalt des ursprünglichen Entwurfes aus den 80er Jahren. 

BAUART

Ort: München Haar
Jahr: 2011
Status:
Größe: 
Kunde: Privater Bauherr
Typ: Sanierung Wohnungsbau