ARCHITEKTEN BDA

Zu Beginn des neuen Jahres 2026 ist aus dem Architekturbüro Grubert, die Partnerschaftsgesellschaft, GPS ARCHITEKTEN | Grubert · Pratz · Speer Architekten PartG mbB geworden. Wir wünschen allen ein frohes neues Jahr.

Aktuelles


Die Maßnahmen für die Sprachalamierungsarbeiten im Residenztheater München sind am laufen.

Die Sicherungsmaßnahmen für die Dachsanierung des Brand- und Katastrophenschutzzentrums starten in Kürze.

Der 3. BA der Torsanierung in der FW2 wird vorbereitet.

Die Torsanierung in der Freiwilligen Feuerwehr Forstenried ist fast abgeschlossen.


Baustellen


Residenztheater München, Brandschutz und Vorabmaßnahmen vor einer Generalsanierung 

Feuerwache 2, FFW Forstenried und FFW Sendling in München, Austausch der Toranlagen

Kloster Benediktbeuern Basilika Hagelschadensanierung Bauleitung für AB Spaenle, München

Kloster Benediktbeuern Alte Schäfflerei, Don Bosco Club Hagelschadensanierung Bauleitung für AB Spaenle, München


Sanierung der denkmalgeschützten Fassade Kinderkrippe München

In Planung

Katastrophenschutzzentrum Mammendorf LKR FFB

Flachdachsanierung Sport/Theaterbau Graubündnerstr. MüncheN

Flachdachsanierung WEG Therese-Studer-Str.

Dachsanierung Grundschule Knappertsbuschstr. München

FFW Allach Erweiterungsbau, Machbarkeitsstudie

FW6 Generalsanierung der Mensaküche

Gärtnerplatztheater Umzug des Theaterfundus nach Garching

Bayerisches Landesamt für Denkmalpflege Einbau neuer Aufzug

Bayerische Staatskanzlei Sanierung Brandschutzklappen

FFW Kleinmachnow Neubau Feuerwehrhaus mit ARC Magdeburg

Sozialer Wohnungsbau, Aufstockung Sigmundstr. Penzberg in Holzbauweise, 2.BA

Kinderkrippe und Wohnungsbau an der Adalbertstr. in München

Sigmundstr. und Philippstr. Penzberg, Freiflächengestaltung mit Vogl+Kloyer

Wintergarten und energetische Maßnahmen an einem Reihenendhaus in Penzberg

Feuerwache 7, NEF-Stellplatz

Feuerwache 10, Toranlagen und Brandschutzmaßnahmen

FFW Forstenried Erweiterung

FFW Taufkirchen  Machbarkeitsstudie

default
GPS - Thomas Grubert | Manuel Pratz | Christoph Speer
IMG_7972
Basilika Kloster Benediktbeuern Nordturm ist eingerüstet
20250528_084447
FW2 Neue Sektionaltore 1.BA fertiggestellt
IMG_7413
Katastrophenschutzzentrum Mammendorf Nutzungsänderung, Dachsanierung
IMG_7417
IMG_7460
Katastrophenschutzzentrum Mammendorf Belastungsstrecke Atemschutz
IMG_7974
Basilika Kloster Benediktbeuern Aufschieblinge Norddach sind erneuert
IMG_7973
Basilika Kloster Benediktbeuern Anastasiakapelle Erstellen der Dachlattung
default
Arbeiten auf dem Norddach der Basilika Kloster Benediktbeuern Bauleitung für Büro Spaenle
default
Arbeiten auf dem Norddach der Basilika Kloster Benediktbeuern Bauleitung für Büro Spaenle
IMG_6688
Gärtnerplatztheater Umzug Kostümfundus nach Garching
default
Arbeiten auf dem Norddach der Basilika Kloster Benediktbeuern Bauleitung für Büro Spaenle
IMG_6506
Gärtnerplatztheater Umzug Kostümfundus nach Garching
default
Dacharbeiten Aufstockung Sigmundstr.9
default
Dacharbeiten Aufstockung Sigmundstr.9
default
Dacharbeiten Aufstockung Sigmundstr.9
default
AELF Treppenhausanbau
AELF-Weilheim
AELF Treppenhausanbau
IMG_20230530_212650
AELF Treppenhausanbau
OLYMPUS DIGITAL CAMERA
AELF Treppenhausanbau
AELF-Innen
AELF Treppenhausanbau
AELF-Gelaender
AELF Treppenhausanbau
default
Basilika Dachaufsicht Dacharbeiten Okt.24
default
Basilika Dachaufsicht Dacharbeiten Okt.24
default
Feldafing Wohnanlage Dachaufsicht Mai24
Wohnanlage-Feldafing-Fertigstellung-Wohnungen
Wohnanlage-Feldafing-Fertigstellung-Wohnungen
Wohnanlage-Feldafing-Tiefgarage
Wohnanlage-Feldafing-Tiefgarage
GTH-1
Gärtnerplatztheater Planung einer neuen Sonnenschutzanlage vor der Mensa
Sonnenschutz-4
Sonnenschutzanlage für die Mensaterrasse Sept.24 Gärtnerplatztheater
Sonnenschutz-1
Sonnenschutzanlage für die Mensaterrasse Sept.24 Gärtnerplatztheater
Sonnenschutz-6
Sonnenschutzanlage für die Mensaterrasse Sept.24 Gärtnerplatztheater
Screenshot-2024-03-01-130459-1
Kloster Benediktbeuern Westarkaden Verformungsgerechtes Aufmaß mittels 3D Laserscan Überlagerung Orthofoto CAD-Zeichnung
Laengsschnitt-Ausschnitt
Kloster Benediktbeuern Westarkaden Verformungsgerechtes Aufmaß-Ausschnitt
Laengsschnitt-Ausschnitt-2
Kloster Benediktbeuern Westarkaden Verformungsgerechtes Aufmaß-Ausschnitt
3D-Laserscan1
3D Laserscan mit dem Leica RTC360
3D-Laserscan-2
3D Laserscan mit dem Leica RTC360 über Kopf
IMG_20220822_171948
Oper München - Aufmaßarbeiten Scherenzug Vorhang
IMG_20220817_125926
Oper München - 3D-Laserscan Blick von der Bühne in den Zuschauerraum
IMG_20220810_115442-1
Oper München - 3D-Laserscan
1
10
default
default
default
default
Bewehrung-PI_Seite_3
PI Gautung Detail Bewehrung Bodenplatte
default
default
Sockel3
AELF-Fertigteil für runde Ecksituation
default
default
Karbon-1
Karbonisierte Holzschalung AELF
Sockel-1-1
AELF - Fertigteilsockel montiert
Sichtbeton-2
Sichtbeton innen AELF
Bildschirmfoto-2022-07-24-um-23.33.51
Baugrube AELF
IMG_20220830_120621
Laserscan Neubau und Bestand
IMG_20220810_104010-1
Oper München - 3D-Laserscan Blick auf die Bühne
20220803_4.OG_kl
2022 Sanierung der asbesthaltigen Brandschutzklappen - 4-Kammer-Schleuse
Bildschirmfoto-2022-05-12-um-10.07.39
Veröffentlichung - Feuerwehrhaus Iffeldorf
2021-07-03_Resi_Oper_Muenchen
Skizze Resi und Oper, Sanierungsarbeiten im Residenztheater und Aufmaßarbeiten in der Oper durch unser Büro
Rodung
PI Gauting Rodungsarbeiten
UG-BSK
2022 Sanierung der asbesthaltigen Brandschutzklappen - 4-Kammer-Schleuse
4.OG-BSK
2022 Asbestsanierung im Residenztheater - ausgebaute Brandschutzklappen
Screenshot-2022-07-24-at-23-23-52-Grubert-Architekten-BDA
Austausch der polnischen Leihglocke
MLK-4
Martin-Luther-Kirche-Penzberg Neue Farbfassung der Turmuhren nach historischem Befund
MLK-2
Martin-Luther-Kirche-Penzberg Neue Farbfassung der Turmuhren nach historischem Befund
IMG_20220214_091955
Sanierung der Martin-Luther-Kirche Penzberg
IMG_20220310_081906
Fliesenmuster MLK
IMG_20220722_163317
Innenraum, Richtung Orgel, letzte Reinigungsarbeiten
Evangelist
Bei den 4 Evangelisten der Kanzel wurden Finger und Federn nachgeschnitzt.
9D0D25BA-7863-4022-8604-19CA2C1DE82C
Villa-Muenchen2
Sanierung Umbau Villa Solln
PHFB_1
Fassadenentwurf für das Parkhaus des neuen Penzberger Familienschwimmbads PIO
507c3d39-Schnitt
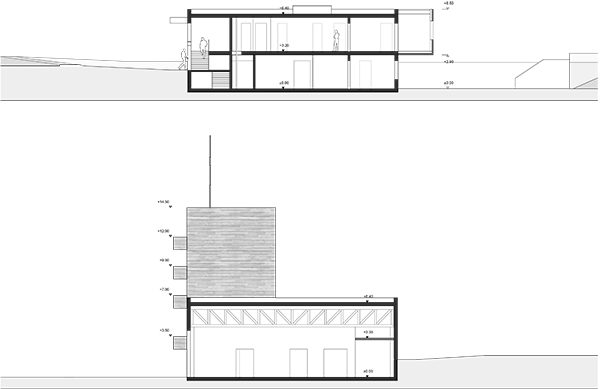
Schnitt Feuerwehr Iffeldorf
507c3d39-Ansicht_Süd
Ansicht Süd Feuerwehrhaus Iffeldorf
Museum-Penzberg-EG
Grundriss EG Museum Penzberg
mg_0251-1100
Klinker Museum Penzberg
Klinker-MP
Klinker Museum Penzberg - Sammlung Campendonk
Klinker-2
Klinkerfassade
Museum-Penzberg-West
25301A79-5100-4EC3-A743-E14A45CA4B2A
Temporärer Eingang Museum Penzberg 2015
Steuerung-4