Feuerwehrhaus-Iffeldorf

FEUERWEHRHAUS IFFELDORF

default
default
West2
lageplan-1_500-1100
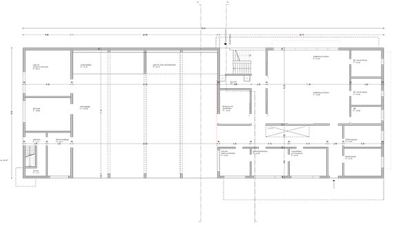
507c3d39-OG
obergeschoss-fwi-1100
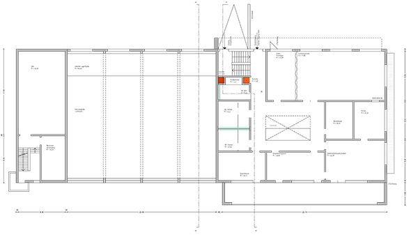
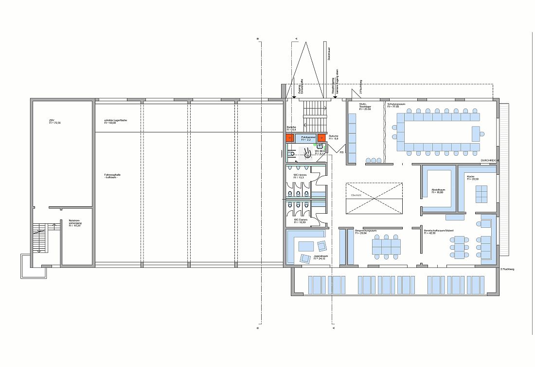
507c3d39-EG_1_100
Nord
default
default
507c3d39-Schnitt
Schnitt Feuerwehr Iffeldorf
507c3d39-Ost_und_West-2
507c3d39-Ansicht_Süd
Ansicht Süd Feuerwehrhaus Iffeldorf
img_1617-1100
Turm
Halle
img_1625-1100
Rutsche
img_6604-1100-crop-u11082
img_6590-1100
Loggia
default
default
default
default

PROJEKTBESCHREIBUNG

In Bearbeitung

BAUART

Ort: Iffeldorf
Jahr: 2017
Status: gebaut
Größe: xxx m2
Kunde: Stadt Iffeldorf
Typ: Öffentlicher Bau